The Shops At Buttonwood – Retail

Commercial
984 sqft
417989

US$ 738,000

Description

Imagine a small community in close proximity to George Town, the airport and Camana Bay. One where children have room to roam, mom can meet friends for coffee and kids can walk to school, participate with others in sports, tutor sessions, supervised playtime, and so much more. Buttonwood Park is envisioned to be all of the above and so much more. The new Island Primary School serves as the heart of the neighborhood, will educate up to 350 children in grades K-6. In 2025 the new private high school will have the capacity for 250 students in grades 7-11. All the makings for an idyllic neighborhood.

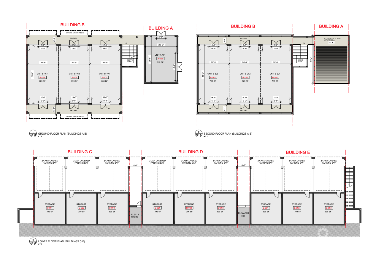
The community will also feature a commercial centre, up to 42 residences, nature park, and sports fields. The Development team and Corcoran Cayman Islands has teamed with Evolving Island to develop the 28,000 SF commercial centre and in the future, phase a residential enclave of up to 42 homes. This development will be ideal for young families and professionals desirous of home ownership in Grand Cayman in a truly unique neighborhood where kids can actually walk to school, participate in tutoring classes and have access to a number of after-school programes, all within a short distance of their home.

We are placemakers, believing that every space we sell should accentuate the neighborhood and families who call this “home”. Only a few select entrepreneurs will be able to seize this unique opportunity. Hopefully, our list of merchants and service providers will spark an interest in your plans for the future.

Features

Garage
No
Pool
No
Views
Garden View
Furnished
No
Year built
2025
Status
Active

Location

George Town, Cayman Islands

Aditional Information

Area: 30
Road frontage: 250
Foundation: Slab
Furnished: No
Zoning: Commercial Neighbourhood

Similar Properties

LandUS$ 250,000
ResidentialUS$ 4,195,000

61 Hoya Quay Crystal Harbour

Seven Mile Beach Area

  • 4
  • 4.5
  • 5,000sqft
  • 420351
LandCI$ 50,000
  • 0sqft
  • 419626
LandCI$ 999,000
  • 0sqft
  • 418442